Aluminium Vouwdeursystemen voor grote glasopeningen en open leefruimtes
Aluminium vouwdeuren, vouwwanden of harmonicadeuren — maximale opening, maximale impact
Breng architectuur tot leven met hoogwaardige aluminium vouwdeuren, ook bekend als vouwwanden, harmonicadeuren of vouwpuien. Deze innovatieve glasoplossing transformeert elke gevel in een dynamische, volledig te openen ruimte waarbij binnen en buiten naadloos in elkaar overlopen. In tegenstelling tot traditionele schuifpuien verdwijnen de panelen van een aluminium vouwwand compact als een harmonica naar één of beide zijden, waardoor een vrije, brede doorgang ontstaat zonder vaste glasvlakken in het zicht. Het resultaat: ongekende ruimtelijkheid, maximale lichtinval en een exclusieve woon- of werkbeleving.
Voor architecten, aannemers, projectontwikkelaars én particuliere opdrachtgevers biedt een aluminium harmonicadeur ongekende ontwerpvrijheid. Of het nu gaat om luxe villa’s, appartementencomplexen, horeca, kantoren, showrooms, serres, veranda’s, tuinkamers of commerciële projecten — een glazen vouwwand voegt direct waarde, uitstraling en functionaliteit toe aan elk gebouw.
Onze aluminium vouwpuien combineren een minimalistisch design met toptechniek en duurzaamheid. Dankzij de slanke maar extreem sterke aluminium profielen zijn grote glasoppervlakken mogelijk van vloer tot plafond en over volledige gevelbreedtes. Dit zorgt voor panoramische uitzichten, een zee aan daglicht en een open, transparante uitstraling die zowel modern als tijdloos is. Tegelijkertijd garanderen hoogwaardige beslag- en railsystemen een soepele, stille bediening en jarenlang probleemloos gebruik — zelfs bij intensief dagelijks gebruik.
Afhankelijk van de toepassing leveren wij zowel thermisch geïsoleerde aluminium vouwdeuren voor woningen en energiezuinige nieuwbouw (geschikt voor lage-energie- en passiefhuizen) als ongeïsoleerde vouwwanden voor bijvoorbeeld veranda’s, buitenkamers, horeca-terrassen of poolhouses. Hoogwaardig dubbel of triple veiligheidsglas, optimale luchtdichtheid, waterdichtheid en inbraakwerende opties zorgen voor comfort, veiligheid en energie-efficiëntie in elk seizoen.
Elke aluminium vouwwand wordt volledig op maat geproduceerd en kan worden uitgevoerd met verschillende openingsconfiguraties, kleuren, structuren en glasopties. Denk aan een geïntegreerde loopdeur, lage of drempelloze onderrails, zonwerend glas, geluidswerend glas of extra grote panelen. Zo ontstaat altijd een oplossing die perfect aansluit bij het ontwerp, de functie en de esthetiek van het project.
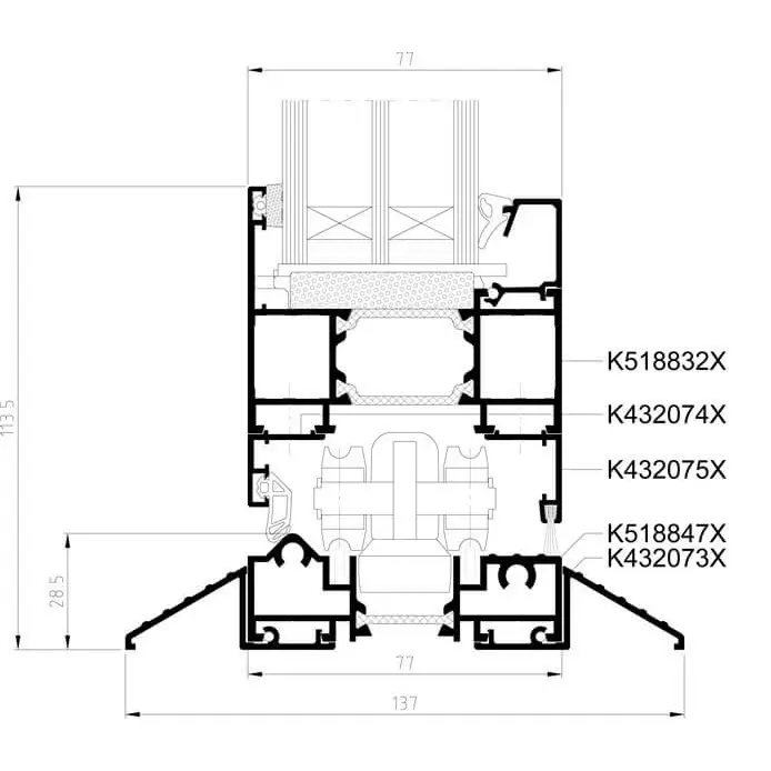
Onze vouwdeuren worden volledig op maat geproduceerd met hoogwaardige systemen van merken zoals Aluprof, Reynaers, Schuco en Aliplast. Perfect op elkaar afgestemde componenten — van profielen en beglazing tot dichtingen en beslag — vormen de basis voor een technisch hoogwaardig, duurzaam en onderhoudsarm product met een uitzonderlijk lange levensduur. Of het nu gaat om een woning, kantoor of commerciële ruimte: u bent verzekerd van kwaliteit, stabiliteit en optimale prestaties. Met een aluminium vouw- of harmonicadeur kiest u voor een elegante uitstraling, maximaal comfort en een blijvende meerwaarde voor uw pand. Creëer een unieke leef- of werkomgeving waarin binnen en buiten naadloos in elkaar overlopen en waarin u elk seizoen volop kunt genieten van licht, ruimte en vrijheid.
Een aluminium harmonicapui is bovendien een ruimtebesparend alternatief voor openslaande deuren en vaak flexibeler dan een schuifpui. U bepaalt zelf of u de gevel volledig opent, gedeeltelijk opent of gesloten houdt, terwijl het uitzicht en de lichttoetreding maximaal blijven. Daarmee is de vouwwand niet alleen een esthetische upgrade, maar ook een slimme investering in comfort, gebruiksgemak en vastgoedwaarde.
De aluminium vouwdeuren kunnen worden uitgevoerd met hoogwaardig HR++ dubbel isolatieglas of HR+++ triple isolatieglas voor optimale thermische prestaties. Daarnaast zijn diverse speciale beglazingsopties mogelijk, zoals zonwerend glas, geluidswerend glas, veiligheids- en inbraakwerend glas.
Hiermee bent u verzekerd van maximaal woon- en werkcomfort, uitstekende energie-efficiëntie en een hoog niveau van veiligheid en bescherming — volledig afgestemd op uw specifieke situatie en wensen.
Waarom kiezen voor onze aluminium vouwdeuren, vouwwanden of harmonicadeuren?
Maximale opening van de gevel — vrijwel volledig wegschuifbaar
Maximale opening van de gevel — vrijwel volledig wegschuifbaar
Slanke aluminium profielen met grote glasvlakken
Geschikt voor woningen, utiliteitsbouw en horeca
Uitstekende thermische isolatie (ook passiefhuis geschikt)
Duurzaam en weerbestendig
Hoogwaardige veiligheidsglazing en inbraakwerende opties
Soepele en stille bediening, zelfs bij grote afmetingen
Volledig maatwerk in kleur, afwerking en configuratie
Verhoogt comfort, lichtinval en vastgoedwaarde
Perfecte verbinding tussen binnen en buiten
Bent u architect, aannemer, projectontwikkelaar of particuliere opdrachtgever en zoekt u een hoogwaardige aluminium vouwpui, glazen vouwwand of harmonicadeur voor uw project? Wij denken graag met u mee — van ontwerp en engineering tot levering en montage.
Vraag vandaag nog een vrijblijvende offerte aan en ontdek hoe onze aluminium vouwdeuren uw project naar een hoger niveau tillen met meer licht, ruimte, luxe en gebruikscomfort.

Aluminium Aluprof vouwdeuren
Aluminium Aluprof harmonicadeuren

Aluminium Schuco vouwdeuren
Aluminium Schuco harmonicadeuren

Aluminium Reynaers vouwdeuren
Aluminium Reynaers harmonicadeuren

Aluminium Aliplast vouwdeuren
Aluminium Aliplast harmonicadeuren
Interesse in onze aluminium vouwdeuren, harmonicadeuren?
We gaan graag met u in gesprek om te kijken wat we voor u kunnen betekenen.
Vrijblijvend een offerte aanvragen?
Wilt u weten wat wij voor u kunnen betekenen? Vraag gemakkelijk een offerte aan!








